
Un progetto di
L'ultimo mattone al CSSC di Carceri
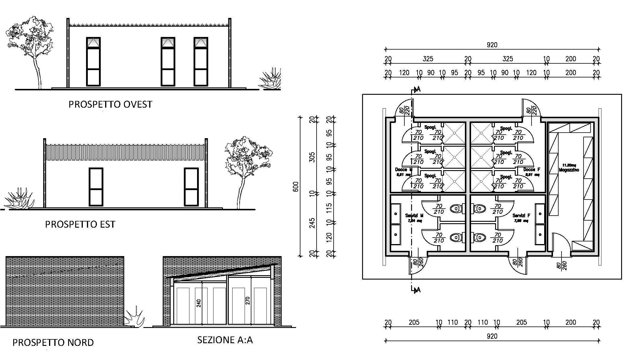
Il Centro di Spiritualità Scout Carceri “Giulia Spinello” opera dal 2015 e da allora ha ospitato 2859 persone nel 2015, 2858 nel 2016, 4132 nel 2017 e 3206 nel 2018. L’ospitalità del Centro si concentra sulla casa, l’antica dimora del Padre Foresterario che, accanto alla porta medioevale, dava accoglienza ai pellegrini e a chi desiderava vivere in monastero per un periodo di pace e riflessione. La casa, di proprietà della Parrocchia di Carceri ed inserita nell’omonima Abbazia del 1400, è stata completamente ristrutturata attraverso donazioni e il lavoro dei volontari. Ora, per dare maggiore senso all’ospitalità che caratterizza il Centro e l’intera Abbazia, è stato necessario realizzare ulteriori servizi igienici, soprattutto a supporto di chi decide di soggiornare all’aperto, come tipicamente gli scout fanno.La recente emergenza sanitaria ha bloccato l'accoglienza ma nel frattempo i servizi sono stato quasi ultimati grazie al supporto delle Associazioni Scout che sostengono il Centro, alla capacità di autoomia del Centro stesso e alle donazioni di amici e sosotenittori. Manca un piccolo ultimo mattone per completare l'opera e renderla operativa.
Dona o regala una donazione: contribuirai a rendere funzionale e bello il Centro che, immerso in un luogo dell’anima, offre ai giovani scout e non una opportunità di ascolto della propria vita e della Parola di Gesù, di preghiera personale e intima con Gesù Risorto e la comunità, di incontro con fratelli e sorelle che percorrono la stessa strada, per poter essere persone felici e libere come Cristo.


